来源:互联网 阅读:-
别墅的风格设计有很多种,当今最流行的有简欧、现代、新中式等风格,但是近年来现代风着实火了一把,特别是年轻一代最为青睐,它简约时尚的造型最为符合当代人的审美观。今天给大家推荐了4款现代风平顶别墅设计及外观图,看看有没有你的菜?
别墅设计一
别墅风格:现代
占地面积:279㎡
预估造价:76万
别墅层数:二层
建筑占地:21.5m×13m
建筑面积:501㎡
建筑结构:砖混结构
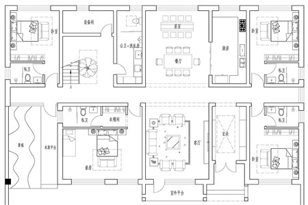
别墅整体为现代风格,整体结构方正,视觉感上很对称,庭院的设计给居住者提供了充足的活动空间。
院中设计了两个停车位,方便自家车辆的停放,还可以种植一些树木花草,增加绿化的面积。
外立面颜色偏沉稳,玻璃元素的采用,不仅使得房子整体更加轻巧,也有利于室内的采光和通风。
一层进门处是玄关,客厅与餐厅隔着走廊,方便交流,四个卧室满足了居住的需求。二层除了休息空间外,还设计了室外露台,增加了居住者活动休闲的空间,
别墅设计二
占地面积:437㎡
预估造价:70万
别墅层数:三层
建筑占地:23m×19m
建筑面积:750㎡
建筑结构:其他结构
别墅整体为中式设计,三层的结构提供了充足的居住空间。外立面为不规则的设计,使得建筑充满了个性,墙面铺贴的砖块搭配窗户的木质结构,充满了古典韵味。
大面积的露台增强了建筑与环境的联系,在闲暇时光,可以约上三五好友在这里聚会。
别墅设计三
占地面积:292㎡
预估造价:66万
建筑占地:24.4m×12m
建筑面积:600㎡
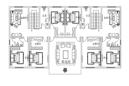
房子为二层现代风格,外立面以白色和木色为主,整体简洁大方,充满自然的质感。庭院内设计了车库、公厕以及菜园,非常适合乡村的生活。
由于是双拼的设计,所以一层的布局结构对称,进门处是客厅和餐厅,厨房处于独立空间,两个卧室可以作为客房使用。
二层为起居空间,中间设计了阳光房,天气好的时候可以坐在这里和朋友小聚,休闲惬意。
别墅设计四
占地面积:595㎡
预估造价:121万
建筑占地:24.3m×24.5m
建筑面积:808㎡
建筑为三层的结构,造型奇特,充满了设计感,同时也使得房子整体更加灵动。
进门处有一个木质平台,二层有一个室外的露台空间,摆放了桌椅后就可以作为一个聚会的地方了。
除了基本的生活空间外,还有棋牌休闲室,满足了娱乐的需求。车库的设计也方便了自家车辆的停放,提升了生活的便利性。
上面这四款平顶别墅简约时尚,正好符合了我们当代年轻人追求简约的生活习惯,而且现代风别墅还有个好处就是非常适合小户型宅基地,且造价较低,希望大家喜欢哦。
推荐阅读:完美潮流
